Deelkaders bij kozijnmerken

Deelkaders bij kozijnmerken

Deelkaders zijn nodig wanneer een kozijnmerk uit verschillende onderdelen bestaat, denk aan ramen, deuren en panelen los van elkaar.

In de handleiding wordt een voorbeeld gegeven van een kozijnmerk met al deze onderdelen.

Handleiding Splitsen kozijnmerken in deelkaders

LET OP! Kozijnmerken met deelkaders worden meegenomen in de export naar Uniec, indien bij Beschaduwingsinformatie, Alle transparante vlakken is geselecteerd. Deze optie is te vinden in de Modeller in het detailvenster onder Gebouw.

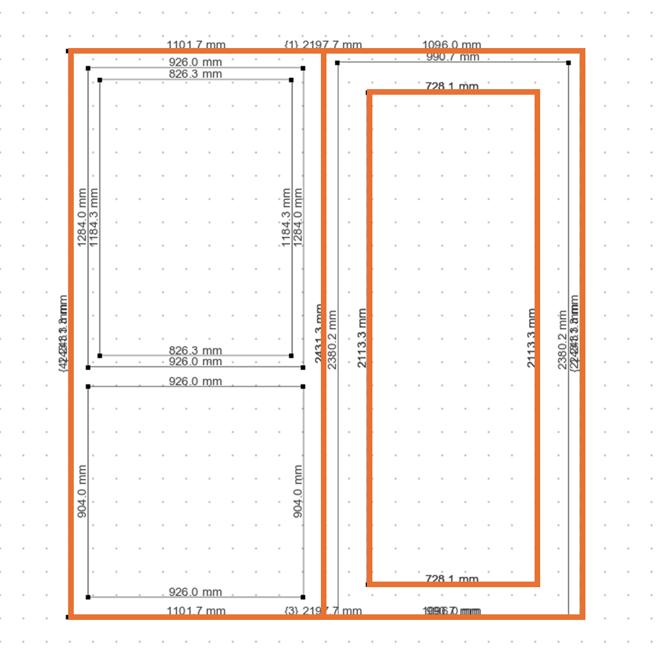
Onderstaand voorbeeld bevat ramen en deuren:

In deze situatie is het glas < 65% ten opzichte van de deur en moet het glas in de deur worden gesplitst.
Het is niet nodig om het te openen raam los te trekken van het andere raam.



In dit voorbeeld teken je 3 deelkaders:
  1. De ramen
  2. Deur exclusief glas
  3. Glas in de deur
    • Related Articles

    • Inladen kozijnmerken vanuit een dxf tekening

      Bespaar tijd met het natekenen van kozijnmerken door je dxf te gebruiken door hier lijnen (omtrekken) van te selecteren. Foutloos en een stuk efficienter! Zijn de ramen getekend in Sketchup, Rhino of een ander tekenpakket? Geen probleem, veel andere ...
    • Kozijnmerken in één keer verplaatsen (z-offset aanpassen)

      Worden toch weer alle ramen aangepast in het ontwerp? En alles al getekend in Gebouwprestatie? We krijgen vaak de vraag hoe je dit kan doen en hier zijn zeker wat handige trucjes voor... In de kozijneneditor in de Modeller kan je kozijnmerken ...
    • Handleiding Uniec 3 Connect

      Introductie In deze handleiding wordt uitgelegd hoe er exportbestanden vanuit Gebouwprestatie naar de UNIEC3 webapplicatie gemaakt kunnen worden. Met de UNIEC3connect-module kunnen bouwkundige gegevens uit een Gebouwprestatie-model geëxporteerd ...
    • Voorgedefinieerde constructies toepassen bij importeren van DXF- , SketchUp- en gbXML-bestanden

      Constructies (op basis van materiaallagen) gebruiken in de Modeller Onderdeel: Gebouwprestatie | Workflow | Projectbibliotheek | Constructies In de Projectbibliotheek kan worden ingesteld welke constructies standaard beschikbaar zijn voor de ...
    • Wijzigingen Gebouwprestatie V2023 (13 januari 2023)

      Algemeen Standaard geen haakjes in de bestandsnaam bij het exporteren van rapportages als PDF Constructies met type ‘sparing’ worden nu expliciet gecontroleerd bij diverse berekeningen Optie toegevoegd om hoogte voor het bepalen van de ...